
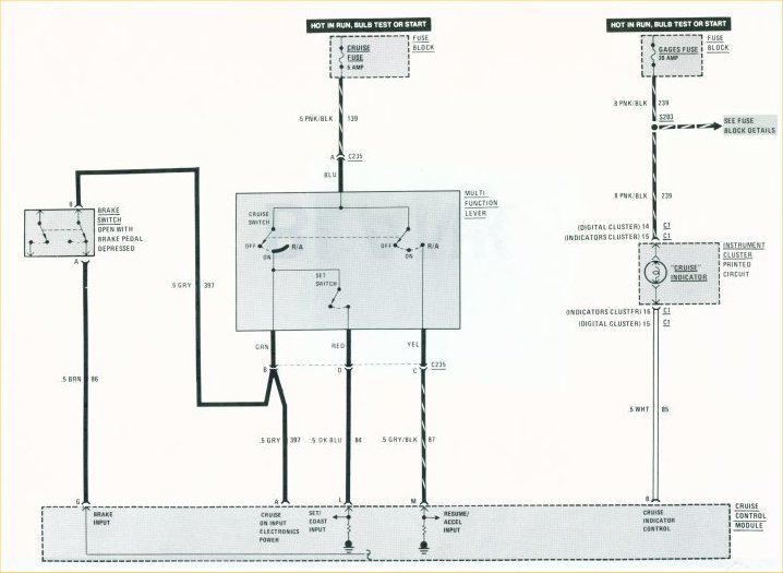
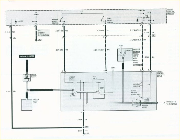
Cruise Control Trouble Shooting
Note that the troubleshooting table procedures require the connector to be disconnected from the module and the key turned to ON. Terminals in the connector are then probed and readings are taken with a common multimeter. I prefer the digital, auto ranging models for simplicity. Be sure you are reading DC volts.
The cruise control module is mounted under the dash on a bracket above the accelerator pedal.







