
Blower Operation
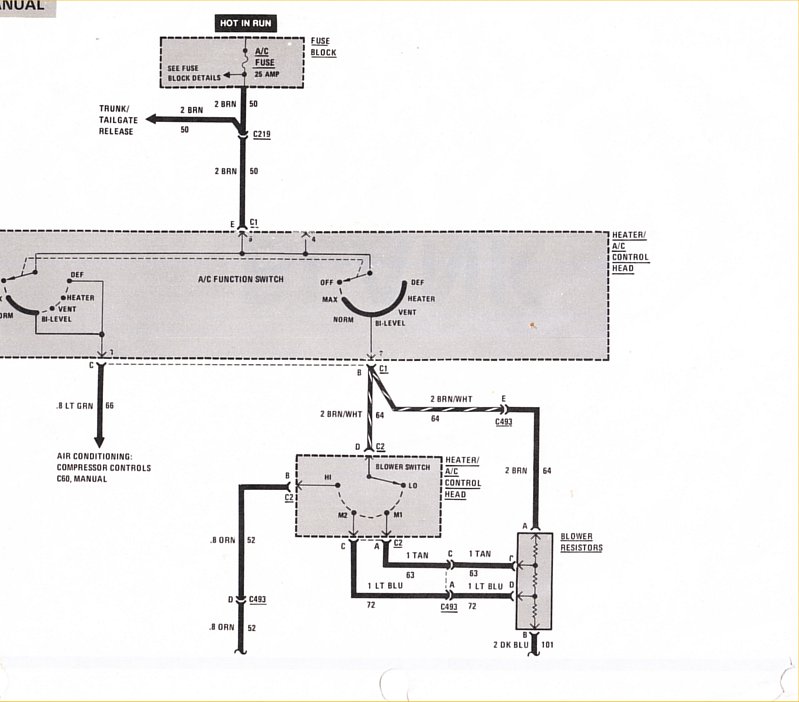
Below is the wiring diagram for the AC/Heater blower. It is a simple circuit and easy to troubleshoot. Power comes through the A/C fuse and should be present when the key is in the RUN position.
Looking at the diagram (split between two pictures) we can see that power to the blower motor follows two paths. Power for Low speed, M1, and M2 on the fan speed switch goes thru the blower resistor to the blower relay and then to the blower motor.
Power for High speed is provided from one of the fusible links off the starter motor to the blower relay. When the fan speed switch is moved to High, power is sent from the switch via the orange wire to the blower relay. This switches the relay so that power from the fusible link is now sent straight to the blower motor and the blower resistor is no longer in the path.
When troubleshooting, the first thing we need to know is if the fan does not run in any switch position, or does it run only in the lower three speeds, but does NOT run in high speed. If it runs in the lower three speeds and does not run in High, go to step 6 below. Otherwise start at step 1.
Looking at the diagram, one can take different approaches to finding the problem. Following is one of the paths that I would take. If you are familiar with diagrams, probably faster to ignore my comments, look at the diagrams and get it fixed...If the blower does not work in any of the four positions (or only in the first three),
1. Turn the ignition switch to Run, meter the brown wire under the hood going into the blower resistor for battery voltage (pull the connector off, stick one probe into the terminal that is the brown wire, and the other probe to a good ground-should read 12+ volts)
2. If it has 12+ volts, then the A/C fuse is good and power is passing through the Heater-A/C control head to the blower resistor. If it did not have power, I would check the fuse.
3. If the power was at the resistor, I would then see if the blower motor was any good. Supply power from the battery positive terminal to the purple wire going into the blower motor. I normally stick a wire from the battery into the connector on the purple wire side. If you have to remove the connector, then you will have to jumper a wire from the black wire side of the motor to ground as well as provide power to the purple wire side. If the motor runs, you then know that the problem is apparently either in the blower relay, or the resistor network. My experience has been that the relay is usually the culprit, but, I have seen the resistor networks fail as well, BUT, the fan should still blow on High speed unless both the relay and the resistor have failed somewhere in the past.
4. If the motor ran with direct power and all four speeds are dead, I would probably kick something, but, to fix it, we still have to figure out what is wrong.
5. It may be that we have two separate problems so: Let's first look at the lower three speeds. If we had power going into the resistor network on the brown wire, then we should have power coming out of the resistor on the dark blue wire...see the diagram, power goes thru three resistors in series and emerges at a lower voltage on the dark blue wire going to the relay. Check the blue wire at the relay to see if there is power there. If there is, then the relay would appear to be the culprit. If there is not, pull the resistor out of the the hvac box and visually examine it to see if it is burned up, or not.
Once we get power coming thru the resistor, going into the relay, and then on to the blower motor, it should run if the ground side of the motor is good. In order to check the relay to see if it is the problem, put a jumper across the relay between the dark blue wire and the purple wire going to the fan. This eliminates the relay and sends the power to the motor. It should now run, and you know you have a problem at the relay.
6. Okay, assuming we now have the lower three speeds working, let's see about High speed. When we put the fan speed switch on high, it sends power thru the orange wire to the relay which switches the relay so that voltage now comes from the fusible link to the relay and on to the blower motor. Check the relay to see if there is battery voltage at the relay on the orange wire when the switch is on High. If there is not, follow the orange wire back toward the inner fender and find the connector. 99.9% of the time, this connector is smoked and is no longer making a good connection. Fix it if this is the case and you should have High speed. If you had power at the relay, then check the red wire at the relay which comes from the fusible link to see if it has power. If it does not, replace the fusible link. If it does, change the relay.

